Logo

Günther & Angelika Lieb
Heimgartenstraße 19
82362 Weilheim
Telefon 0881/3831
info@lieb-immobilien.de

Bild


Sie können dieses Angebot über folgenden Link in Ihrem Webbrowser aufrufen:
https://www.lieb-immobilien.de/detailansicht/6219

19.05.2026, 22:09 Uhr

Ihr-neues-Zuhause
Ansicht-Suedwest
Kueche
Esszimmer
Wohnzimmer
Arbeitszimmer-EG
WC-EG
Diele-EG
Freisitz
Freisitz-Ausblick
Flur-OG
Kinderzimmer-1
Kinderzimmer-2
Schlafzimmer
Bad
Suedbalkon
Hobbyraum
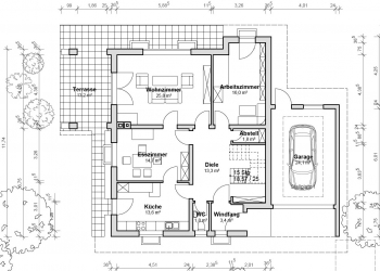
Grundriss-Erdgeschoss
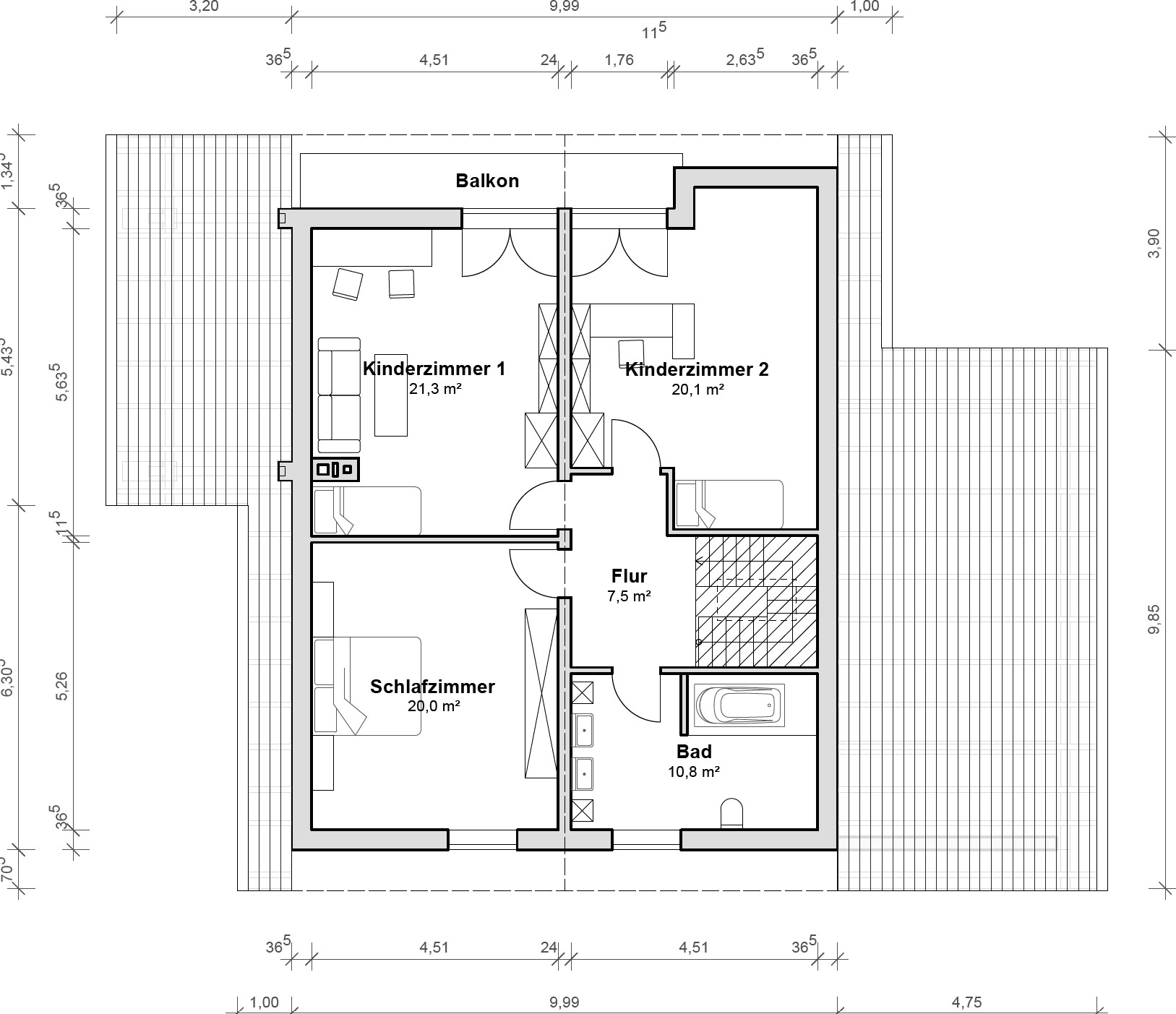
Grundriss-Obergeschoss
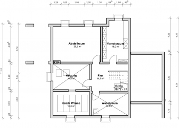
Grundriss-Kellergeschoss
neues Angebot

Viel Platz für die Familie – Freistehendes EFH auf schönem Grundstück in Weilheim/Unterhausen

Das großzügige EFH befindet sich im Ortsteil Unterhausen in besonders ruhiger und attraktiver Wohnlage. Der Stadtbus, Kindergarten, Einkaufsmöglichkeiten, sowie der Dietlhofer See sind gut erreichbar.

Dieses charmante Haus im Landhausstil mit ca. 180 m² Wohnfläche zzgl. ca. 96 m² Nutzfläche befindet sich auf einem großzügigen Grundstück mit ca. 901 m² Areal und bietet viel Platz zum Leben und Gestalten.

Im Erdgeschoss erwarten Sie ein Windfang, eine große Diele und eine separate Küche mit vorhandener Einbauküche. Daneben grenzt das Esszimmer an. Dieses ist derzeit als gemütliche Stube mit Holzdecke und Kachelofen eingerichtet. Vom großzügigen Wohnbereich haben Sie Zugang zur Süd- und überdachten Ostterrasse. Zusätzlich stehen Ihnen im EG ein weiteres Zimmer, Gäste-WC und ein Abstellraum zur Verfügung.
Das Obergeschoss verfügt über 3 große Schlafzimmer, davon zwei mit Zugang zum Südbalkon, und das Bad. Das Haus ist voll unterkellert und bietet mit mehreren Räumen ein vielfältiges Platzangebot.
Derzeit ist ein Treppenlift im Haus eingebaut.
Eine geräumige Garage gehört zum Haus.

Das Haus wurde 1985 in solider Ziegelbauweise erstellt und bietet viel Potential zur individuellen Gestaltung. Baujahrbedingt stehen Renovierungsarbeiten an.

Kaufpreis inkl. Garage EUR 840.000

Endenergieverbrauch: 50,5 kWh/(m²*a), Kennwert: B, Heizöl, Holz, Bj. 1985, Heizung 2002

Maklerprovision: 3,57 % Käuferprovision inkl. MwSt., verdient und fällig mit Beurkundung des notariellen Kaufvertrages. Der Immobilienmakler hat einen provisionspflichtigen Maklervertrag mit dem Verkäufer in gleicher Höhe abgeschlossen.

Zurück zur Liste