Logo

Günther & Angelika Lieb
Heimgartenstraße 19
82362 Weilheim
Telefon 0881/3831
info@lieb-immobilien.de

Bild


Sie können dieses Angebot über folgenden Link in Ihrem Webbrowser aufrufen:
https://www.lieb-immobilien.de/detailansicht/6201

16.04.2026, 14:20 Uhr

Ansicht-Nordwest
Suedansicht
Wohnzimmer-Bild-2
Wohnzimmer
Diele-EG-Bild-2
Kueche
Schlafzimmer
Bad-OG
DG
Studio-DG
DG-Bild-3
Bad-DG
Blick-vom-DG
Garten
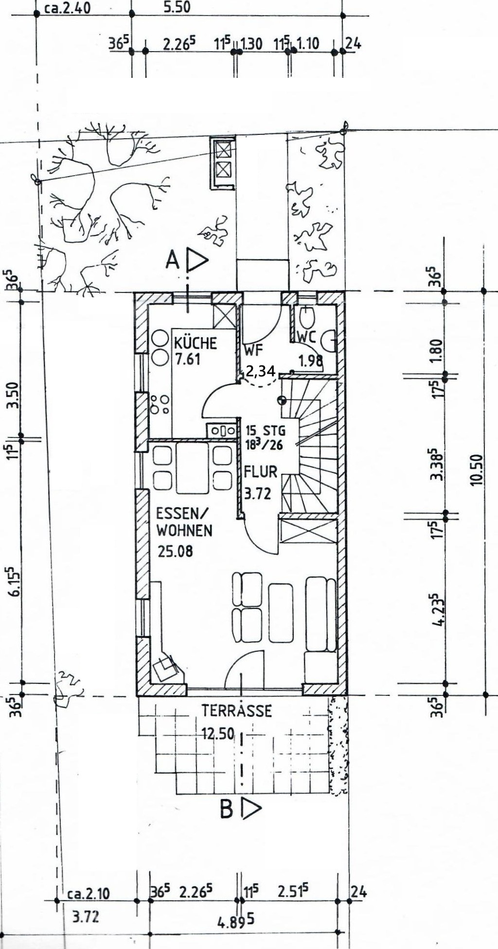
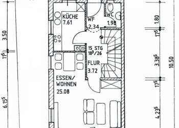
Grundriss-Erdgeschoss
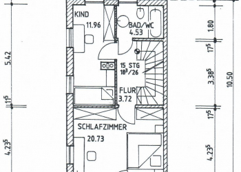
Grundriss-Obergeschoss
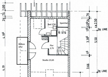
Grundriss-Dachgeschoss
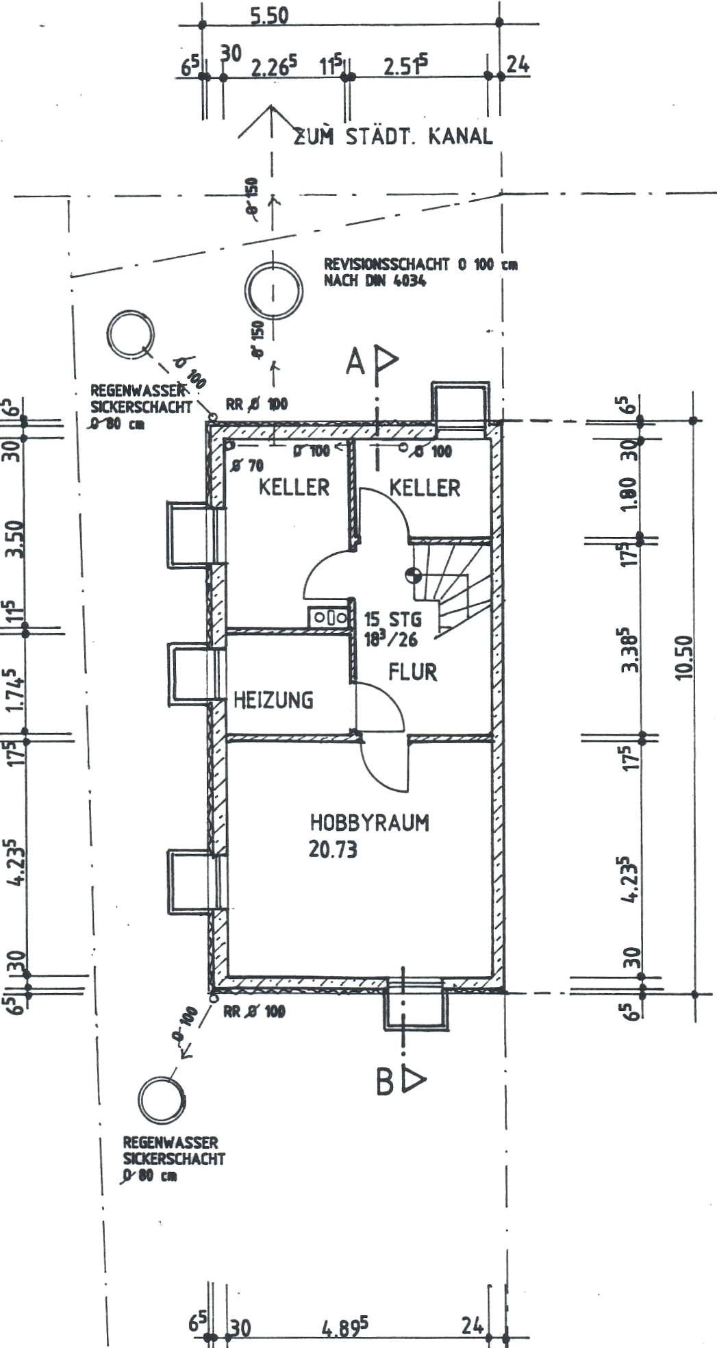
Grundriss-Kellergeschoss
verkauft

Ideal zentral – gemütliches REH in ruhiger und zentraler Lage in Weilheim

Das Reiheneckhaus befindet sich in angenehm ruhiger und zentraler Lage in Weilheim. Mehrere Einkaufsmöglichkeiten, die Fußgängerzone, Ärzte und der Bahnhof sind gut zu Fuß erreichbar.

Im Erdgeschoss erwarten Sie ein großzügiger Wohn-Essbereich mit Zugang zur Südterrasse und dem Garten, sowie eine helle Küche mit einer älteren Einbauküche, eine Diele und das Gäste-WC.
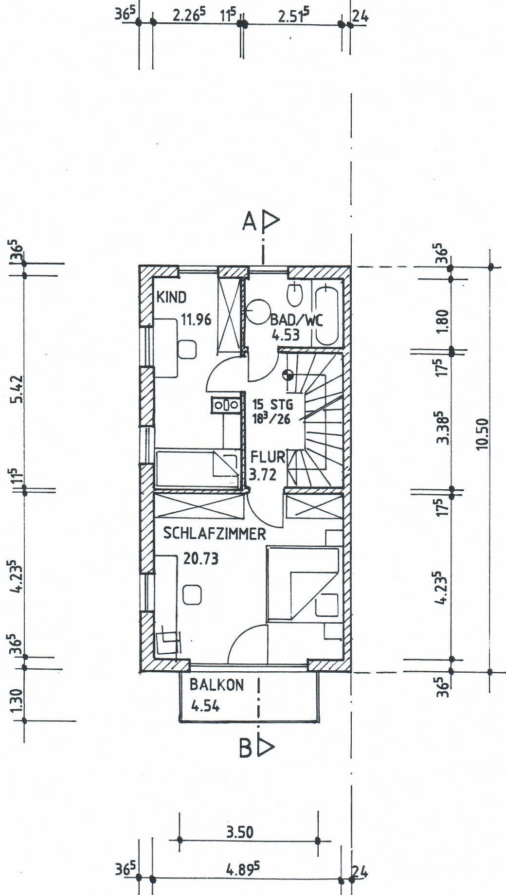
Das Obergeschoß bietet ein großes Schlafzimmer mit Südbalkon, Kinderzimmer und Bad.
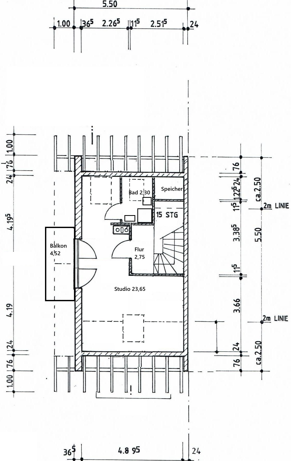
Das Dachgeschoss ist mit einem großen Atelierzimmer mit Westbalkon und zweitem Bad ausgebaut.
Im Keller stehen ein ausgebauter Hobbyraum, Heizungsraum, Vorratsraum und Waschkeller zur Verfügung.

Ausgestattet ist das Haus mit Parkett-, Laminat- und Fliesenböden. Ein Kamin zum Anschluss eines Ofens ist vorhanden.

Die Wohnfläche beträgt ca. 121 m² zzgl. Hobbyraum ca. 21 m².
Die Grundstücksgröße beträgt ca. 210 m², der Garten mit ist zur Süd- und Westseite ausgerichtet. Eine Einzelgarage und ein Geräteschuppen gehören zum Haus.
Das Haus wurde 1998 in solider Ziegelbauweise erstellt, das Grundstück ist realgeteilt.
Renovierungsarbeiten sind erforderlich. Bezug ist nach Kauf möglich.

bereits verkauft

Endenergieverbrauch: 132,1 kWh/(m²*a), E, Energieträger: Gas, Baujahr 1998. Der Energieausweis ist am 26.10.2024 abgelaufen, ein neuer Energieausweis liegt zur Besichtigung vor.

Maklerprovision: 3,57% Käuferprovision inkl. MwSt., verdient und fällig mit Beurkundung des notariellen Kaufvertrages. Der Immobilienmakler hat einen provisionspflichtigen Maklervertrag mit dem Verkäufer in gleicher Höhe abgeschlossen

Zurück zur Liste